티스토리 뷰
728x90
반응형
안녕하세요 성하다 입니다.
오랜만에 인사드리네요.
이번 2025년 2회 건축사 시험을 보고 후기를 남기려고 적습니다.
먼저 총평을 하자면
이번 건축사시험은 정말 불시험이였습니다.
1,2,3교시 다 난이도가 높았고 특히 2교시는 너무나 어려웠습니다.

제가 시험본 장소는 석촌중학교였습니다.
자리는 맨 앞자리였습니다.. 하지만 감독관운이 좋아서 깔끔하게 진행하였습니다.
9시 도착하여 1교시 깔지와 문제지, 트레싱지를 받고 시험을 진행하였습니다.
저는 기합격 상태이기때문에 간단히 손만 푼다는 느낌으로 풀었습니다.
그런데 풀다보니 욕심이 생겨서 완도(?)까지 하였습니다. 반년만에 풀려니 잘 안되네요ㅎㅎ
역시 시험 보면 다 까먹나봅니다.
그치만 일찍오길 잘했습니다. 깔지도 미리 깔고 좀더 차분히 2교시를 준비할수있었습니다.
또 손도 풀겸 글씨연습도 할겸 1교시를 풀어보시는걸 추천드립니다.
11:30분에 시험지를 제출하여 잠시 밖에 나와 바나나, 계란, 게토레이를 먹었습니다.

2교시 시험
이제 트레싱지와 문제지를 받았습니다.
정말.. 당황했습니다.
시험 지문도 길고 답안지는 총 3개를 작성하라고 되어있었습니다.(각 지문 및 시험지 답안지는 대표학원에 가면 쉽게 구할수있습니다)


작도량이 엄청많겠다 싶었고 지문조건도 많아 시간이 부족할거 같다고 판단하였습니다.
계획을 빠르게 진행하였습니다.

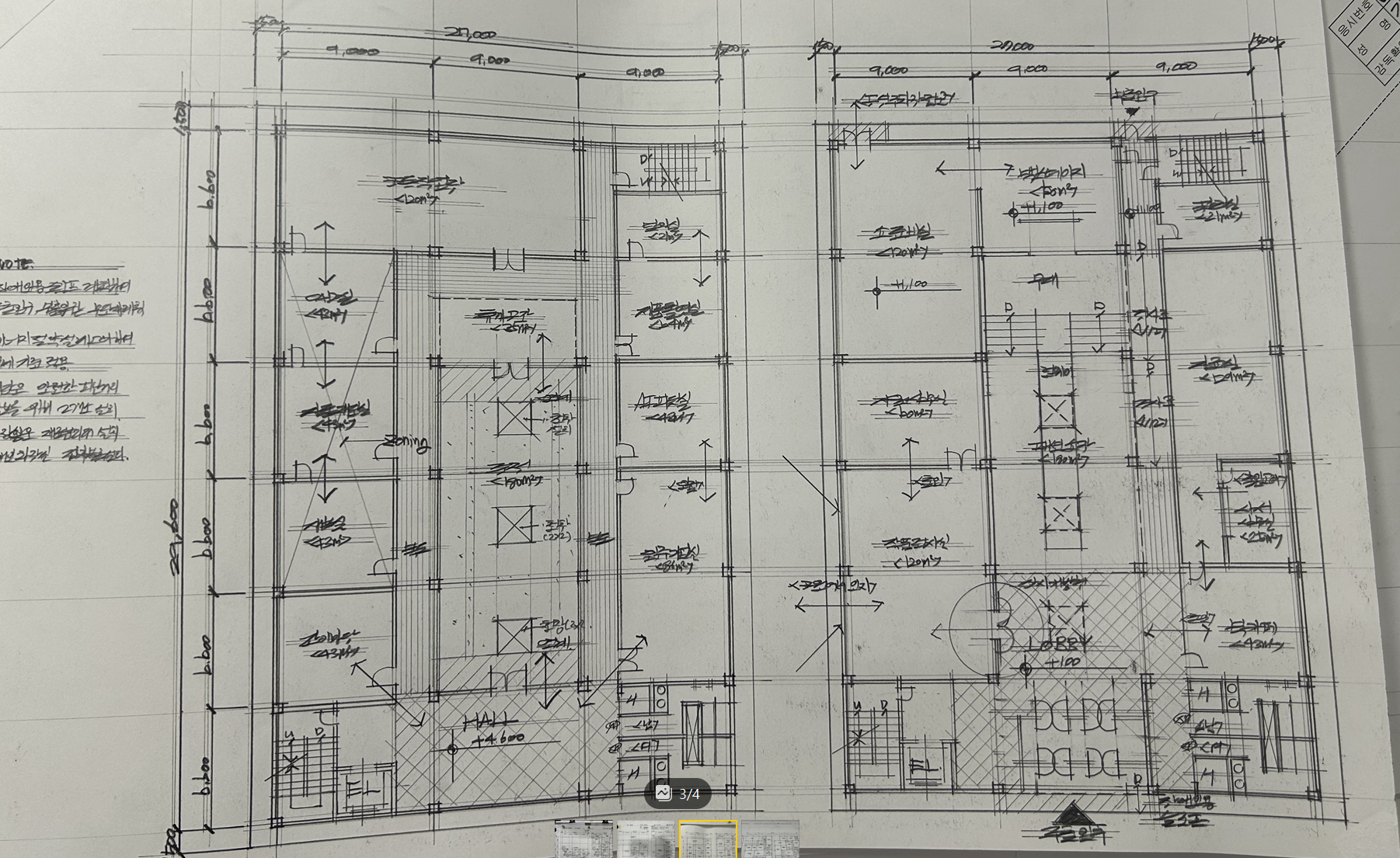
이렇게 지문조건과 모듈, 토지이용계획 등을 정리하고

최종적으로 모듈과 디테일한 부분을 정하여 작도하였습니다.
계획 1:40분
작도 1:20분 하였습니다. 보통 다른 도면은 1:10분에 끝나는데, 이건 좀.. 어려웠습니다... 작도량도 많고요.
집에와서 복기한 도면입니다.
(예상점수 65점)


<제가 생각했을때 부족한 부분>
-1층
1.북카페와 라운지 사이 복도
2.근생a 면적부족
-2층
1.다목적홀을 실로 구획
2.에듀라운지와 메이커스룸 연계부족
3.이커스룸,동아리실,세미나실 면적 부족
4.포켓마당 상부 실구획
-기준층
1.각 세대 화장실 프리핸드 표기
주안점은 다 표기하였고 작도는 평소 퀄리티의 80%정도로 완도하였습니다. 시간이 절대적으로 모잘랐습니다.
평사시 도면 퀄리티
그치만.. 노트는 적지도 못했고 해치는 거의 날려서 작도하였습니다...평상시 실력의 80%정도로 완도한거같네요...




점수가 나오면 다시 공유드리겠습니다.
11.14(금)까지 열심히 기다려야겠네요.
긴글 읽어주셔서 감사합니다.
다들 시험 보시느라 고생하셨습니다.
728x90
반응형
'자격증 및 자기계발 > 건축사' 카테고리의 다른 글
| 건축사 최종합격 발표 (6수 후기..포함 / 공부법 / 앞으로 계획) (0) | 2025.11.25 |
|---|---|
| 2025년 1회 건축사 시험 결과 후기 (복기 도면 포함) (1교시 합격, 2교시 불합격) (1) | 2025.04.28 |
| 건축사 시험 준비를 위한 추천템 (0) | 2025.04.22 |
| 건축사 시험 제도용품 준비목록 (0) | 2025.04.21 |
| 2025년 1회 건축사 시험 후기와 체감난이도(Feat, 복기 답안 / 멘탈 관리 팁) (4) | 2025.03.12 |
공지사항
최근에 올라온 글
최근에 달린 댓글
- Total
- Today
- Yesterday
링크
TAG
- 퇴사준비 #퇴사일기
- #건축사사무소 #개소준비 #예비건축사 #건축일상 #1인사무소 #용도변경 #리모델링 #해체감리 #BIM #인허가 #건축계약 #프로세스공개 #리스크관리 #체크리스트 #브런치연재
- #skt유심보호 #유심보안서비스 #사이버침해예방 #유심도용방지 #휴대폰보안 #유심보호서비스 #skt서비스안내 #통신사보안 #휴대폰피싱예방 #모바일보안 #개인정보보호 #스미싱예방 #통신사사기예방 #휴대폰도용방지 #스마트폰보안설정 #사이버보안팁 #skt고객혜택 #모바일해킹예방 #유심잠금설정 #스마트폰도난방지
- #침실조명추천 #무드등추천 #수면유도조명 #베드사이드램프 #무선무드등 #감성조명 #스노우볼무드등 #침실인테리어 #편안한조명 #인테리어조명
- #셀프인테리어 #아야빠 #인테리어책 #diy #홈인테리어 #집꾸미기 #인테리어초보 #셀프리모델링 #인테리어노하우 #인테리어가이드 #인테리어팁 #인테리어도서 #인테리어디자인 #인테리어공부 #인테리어시공 #인테리어블로그 #인테리어영상 #인테리어유튜버 #인테리어전문가 #인테리어정보
- #집들이선물 #인테리어소품 #감성무드등 #감성선물 #콘크리트소품 #디자인소품추천 #건축가추천템 #디자인감성 #공간오브제 #선물추천
- 건축법
- #운동식품 #운동전 #운동후 #단백질 #그릭요거트 #오트밀 #바나나 #블랙커피 #타트체리주스 #쿠팡추천 #쿠팡파트너스
- 취업
- #셀프인테리어 #diy인테리어 #페인트리폼 #타일시트 #폼블럭인테리어 #가구리폼 #led조명추천 #홈스타일링 #홈인테리어 #셀프리노베이션 #공간디자인 #인테리어팁 #집꾸미기 #셀프홈데코 #홈카페인테리어
- #건축적산 #수량산출 #건축실무템 #건축계산기 #건축스케일자 #디지털거리측정기 #a3바인더 #적산노하우 #건축설계사무소 #건축사시험준비 #건축사무소아이템 #적산장비추천 #건축사무소장비 #건축공정관리 #도면읽는법 #건축산출팁 #적산수험생 #건축도면스킬 #설계실무기초 #건축실무정리
- 단열재
- 건축
- #공공건축 #현상설계 #설계공모 #건축사사무소 #1인사무소 #디자인전략 #BIM #조달청 #국토교통부 #설계비 #생활SOC #건축브랜딩
- 건축사합격 #건축사합격수기 #건축사공부법 #이직 #건축사
- 건축사시험후기 #2025년건축사시험 #2025-2건축사시험 #2025-2회건축사시험 #건축사시험후기 #건축사시험2교시 #2교시평면 #시험당일팁 #건축사시험 #건축사
- #건축계획각론 #김용환건축계획 #예문사 #건축사시험준비 #건축기사시험준비 #건축설계기초 #건축실무서적 #건축계획기준 #건축학과필독서 #건축책추천
- #사무용전자제품 #사무실정리 #케이블정리 #전력관리기기 #스마트멀티탭 #무선충전허브 #케이블오거나이저 #포터블배터리 #스마트플러그 #홈오피스필수템
- #건축사시험후기 #2025건축사시험 #건축사합격기 #1교시합격 #건축사2교시준비 #건축사도전기 #건축 #건축사시험경험담 #건축사시험준비팁
- #인테리어 #홈스타일링 #집꾸미기 #셀프인테리어 #원룸꾸미기 #신혼집인테리어 #거실인테리어 #침실인테리어 #전신거울 #블라인드 #장스탠드 #무드등 #러그 #카페트 #디퓨저 #홈데코 #가성비템 #로켓배송 #쿠팡추천 #오늘의딜
- 건축기사
- #스마트홈 #스마트기기 #홈오토메이션 #에너지절약 #스마트조명 #스마트온도조절기 #스마트플러그 #홈보안 #스마트도어벨 #스마트홈추천
- #건축도면작성 #설계실수교정 #평면도작성법 #단면도작성법 #입면도작성법 #치수기입법 #선굵기표현 #건축실무팁 #설계기초 #건축디테일
- #사무용전자기기 #노트북추천 #lg그램14 #삼성데스크탑 #hp복합기 #카시오계산기 #홈오피스구성 #사무실필수템 #전자제품리뷰 #쿠팡파트너스 #생산성업템 #업무용전자기기 #사무실꾸미기 #건축실무 #인테리어전자기기 #건축사시험준비템 #프리랜서사무용 #디지털노마드 #재택근무기기
- #에세이 #일기 #자기성찰 #건축가의일상 #건축가의생각 #건축일기 #인생기록 #브런치에세이 #독립과자립 #나의이야기 #건축사되기 #삶의방향 #꿈과현실 #삶의기록 #쉼과성장 #진로고민 #건축사사무소창업 #개인의길 #혼자일하기 #자기이해
- 건축실무
- #인테리어소품추천 #인테리어조명 #셀프인테리어 #홈스타일링 #무드등추천 #북유럽감성액자 #미니화병 #이케아스탠드 #led무드등 #공간디자인 #인테리어팁 #건축가추천템 #공간분위기변화 #집꾸미기 #카페인테리어 #모던인테리어 #북유럽인테리어 #홈오피스꾸미기 #셀프홈인테리어 #감성조명
- 노하우
- #건축사시험 #제도용품 #제도판 #무빙보드 #도면걸이 #제도샤프 #삼각스케일 #각도자 #삼각자 #템플릿 #건축사준비물 #스터디템 #로켓배송 #쿠팡추천 #파트너스
- 자격증
| 일 | 월 | 화 | 수 | 목 | 금 | 토 |
|---|---|---|---|---|---|---|
| 1 | 2 | 3 | 4 | |||
| 5 | 6 | 7 | 8 | 9 | 10 | 11 |
| 12 | 13 | 14 | 15 | 16 | 17 | 18 |
| 19 | 20 | 21 | 22 | 23 | 24 | 25 |
| 26 | 27 | 28 | 29 | 30 |
글 보관함
반응형